REHAU EURO-DESIGN 70 (70/80mm) – 5/7 CAMERE 2022-11-17T15:11:30+00:00

Project Description

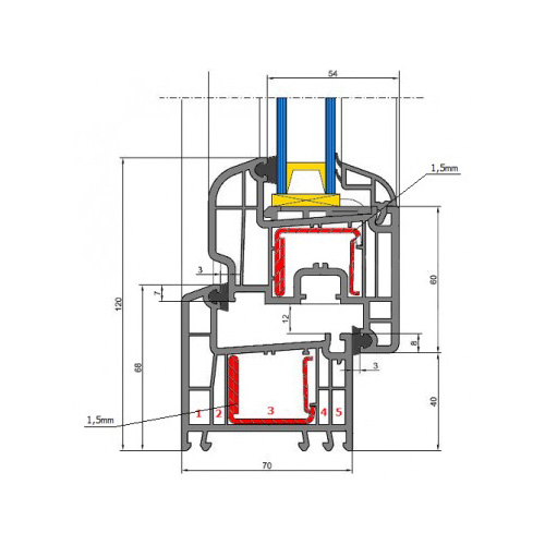
Interessante la serie di finestre in PVC Design dal telaio e ante di spessore 70mm -86mm, con addirittura 5-7 camere e parete esterna di ben 3mm (certificata Classe A). Un sistema finestra ideale per ambienti tradizionali e moderni con un ottimo rapporto qualità-prezzo. Ciascun cliente, al momento dell’acquisto finestre, riceve un contratto con tutte le informazioni su costi, modalità di installazione, montaggio e trasporto. I prodotti sono coperti da garanzia rilasciata dall’azienda. Acquistare i finestre significa fare una scelta di qualità che dura nel tempo, dedicando grande attenzione alla cura dei particolari.
Le nostre finestre hanno prezzi bassi e qualità europea.

REHAU Euro-Design 70 – un buon isolamento termico e una varietà di design per la vostra casa.
Investite nella Vostra casa e anche il più piccolo dettaglio, soddisferà i Vostri desideri. Grazie alla elevata frequenza di isolamento termico ed acustico di una finestra di profilo del sistema REHAU Euro-Design 70, avrete massimi requisiti di design, varietà di forme e colori, una sensazione di comfort e relax. Le finestre di profili REHAU Euro-Design 70, hanno componenti ideali per assicurare un basso consumo di energia. Diversi sistemi di blocco, ma anche altre misure di sicurezza permettono di stabilire le misure necessarie di protezione per ogni finestra di profili REHAU Euro-Design 70 in modo individuale.

Profilo REHAU Euro-Design 70 caratteristiche:

– Profondità costrutiva: 70 mm / guarnizione di contatto
– Trasmittanza termica: Valore Uf:1,3 W/m2K
– Sicurezza contro le effrazioni: fino alla classe di resistenza 2
– Isolamento acustico: fino alla classe di protezione 4
– Superficie: di qualità, lisce, compatte e di facile manutenzione

* I dati ricevuti secondo il parere degli esperti, l’ift di Rosenheim..
** Coefficiente di resistenza termica profilo Rf ottenuto mediante calcolo come valore inversamente proporzionale alla Uf.
Ambito:
-Utilizzato per la produzione di finestre e porte finestre.
– Ideale per l’edilizia privata.
– Efficace per gli edifici a basso consumo energetico.

salve,